850 12th Avenue $949,900
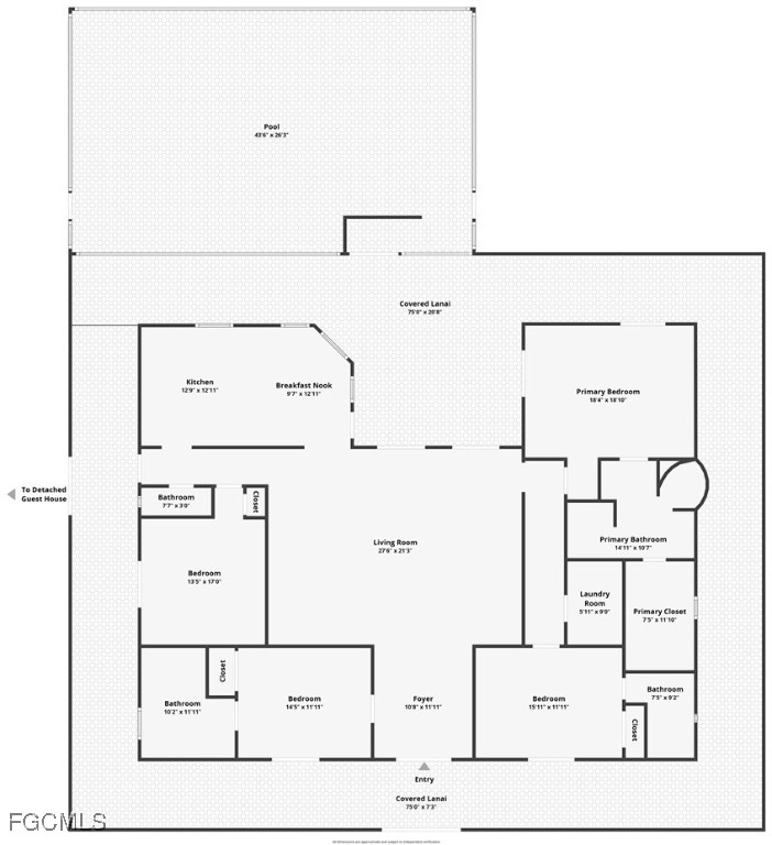
"BUY ONE HOUSE GET ONE FREE" This beautiful home was designed & built by an engineer using 2 X 6 Heavy Timber construction throughout and not your typical 2 X 4 wood frame. Escape to your own private sanctuary in this rare 6.5 Acre Old-Florida style estate offering 4 Bedrooms 3.5 baths and a separate guest house & living quarters perfectly nested in Naples with easy access to Vanderbilt Extension. This home is NOT in a flood zone and has never flooded! 2 brand new A/C Tempstar by Carrier units were just installed on the main house (Sep 2025). This unique family estate offers lots of light & open spaces. The property is located at the end of the street, gated and fully fenced for your security and total privacy. The main house exudes classic Florida character with a metal roof, a spacious screened wrap around porch that invites you to relax and enjoy the tranquil surroundings. Inside the home you will fall in love with the hard wood floors throughout , french doors, and the free standing tubs in the bathrooms. The large chef's kitchen was recently remodeled & painted and offers a large center island, Quartz countertops with plenty of counter space and upgraded Sub Zero stainless steel appliances. Step outside to your privated heated salt water pool & spa , ideal for year-round enjoyment with views of mature trees and a peaceful canal that borders the property. A Separate Guest House provides excellent accommodations for visitors or multigenerational living, complete with a fully remodeled kitchen, brand-new wood laminate flooring, large walk in closet and full bathroom. The guest house also has a screened wrap around front porch with an attached 3 car garage offering plenty of room for vehicles, storage, or a workshop. Both homes are hooked up to a reverse osmosis water filtration system making your appliances last longer and your skin feel silky smooth. A/C unit on guest house is only 4 years old. A 12 ft privacy wall was built by owner along with planting 100 Calusia plants for additional privacy. This one-of-a-kind property and the only home on 12th Ave that gives you direct access to the Vanderbilt bike path that will take you all the way to the beach. Make it your dream farm with horses and livestock, subdivide it up, or build another guest home the possibilities are endless with this estate home giving you ample space for gardens, pets, or expansion opportunities with a perfect balance of privacy, space, and authentic Florida lifestyle. Whether you are seeking a full-time residence, a family compound, or a seasonal retreat, this estate is a must-see! Buy this beautiful property before housing prices explode in this area due to the extension of Vanderbilt Beach Road in a few months!
General Amenities
Interior Amenities
Exterior Amenities
Security Amenities
Landscape Amenities
Community Amenities
Appliance Amenities
Accessibility Amenities
- Beds
- 4
- Baths
- 4.00
- Ft2
- 3,426
- Lot Acres
- 6.50
- Year Built
- 1999
- Heat
- Central,Electric
- Roof
- Metal
Virtual Tour
850 12th Avenue
Naples, Florida 34120
United States
Naples, Florida 34120
United States
Subdivision: GOLDEN GATE ESTATES
County: Collier
Sale Type: For Sale
Ref #: 2025010674
Last Updated: Thursday, 06 November 2025 01:32
Type of Home: Single Family
Listed by RE/MAX Realty Group on Saturday, 20 September 2025 [For Sale]
- Beds
- 4
- Baths
- 4.00
- Ft2
- 3,426
- Lot Acres
- 6.50
- Heat
- Central,Electric
- Cooling
- CentralAir,CeilingFans,Electric
- Roof
- Metal
- Year Built
- 1999
- Garage Size
- 3
- Frontage
- Yes
- Beds
- 4
- Baths
- 4.00
- Ft2
- 3,426
- Lot Acres
- 6.50
- Year Built
- 1999
- Heat
- Central,Electric
- Roof
- Metal
Virtual Tour
850 12th Avenue
Naples, Florida 34120
United States
Naples, Florida 34120
United States
Subdivision: GOLDEN GATE ESTATES
County: Collier
Sale Type: For Sale
Ref #: 2025010674
Last Updated: Thursday, 06 November 2025 01:32
Type of Home: Single Family
Listed by RE/MAX Realty Group on Saturday, 20 September 2025 [For Sale]

USA:
E-Mail: