3311 Twin Lakes Lane $929,000
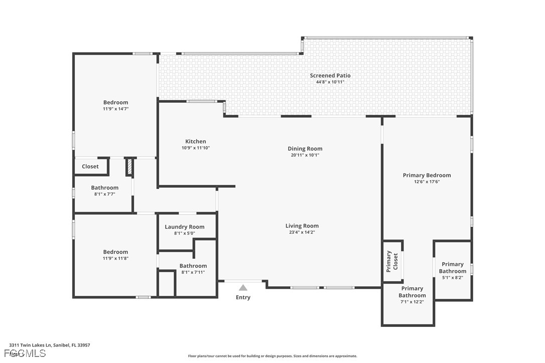
The beautiful Lake Murex community is situated on the West end of Sanibel. Some would say it's a very sought after location with turquoise Gulf waters, sugar sand beaches and some of the the Best Shelling in the World!! Enjoy the deeded beach access just a short 9 minute stroll from this wonderful 3 bedroom, 3 bath, elevated piling home with impact windows and doors overlooking a peaceful lake where the bird watching is the local entertainment. Open/split floor plan with a wonderful screened lanai, new roof 2022 and recently replaced a/c system. Kitchen with stainless-steel appliances, granite counters and lanai pass through. This home is beautifully furnished in a coastal island decor with personal exceptions and sits on a .76 acre lot with room for a pool. Enjoy this great location and all the island has to offer...miles of bike trails, wonderful island restaurants and shopping, spectacular sunsets, J.N. "Ding" Darling National Wildlife Refuge, Bailey-Matthews National Shell Museum & Aquarium and so much more.
General Amenities
Interior Amenities
Exterior Amenities
Landscape Amenities
Community Amenities
Appliance Amenities
- Beds
- 3
- Baths
- 3.00
- Ft2
- 1,477
- Lot Acres
- 0.76
- Year Built
- 1982
- Heat
- Central,Electric
- Roof
- Metal
Virtual Tour
3311 Twin Lakes Lane
Sanibel, Florida 33957
United States
Sanibel, Florida 33957
United States
Subdivision: LAKE MUREX
County: Lee
Sale Type: For Sale
Ref #: 2025018603
Last Updated: Tuesday, 04 November 2025 05:32
Type of Home: Single Family
Listed by Michael Saunders & Company on Tuesday, 04 November 2025 [For Sale]
- Beds
- 3
- Baths
- 3.00
- Ft2
- 1,477
- Lot Acres
- 0.76
- Heat
- Central,Electric
- Cooling
- CentralAir,CeilingFans,Electric
- Roof
- Metal
- Year Built
- 1982
- Frontage
- Yes
- HOA
- Yes
- Beds
- 3
- Baths
- 3.00
- Ft2
- 1,477
- Lot Acres
- 0.76
- Year Built
- 1982
- Heat
- Central,Electric
- Roof
- Metal
Virtual Tour
3311 Twin Lakes Lane
Sanibel, Florida 33957
United States
Sanibel, Florida 33957
United States
Subdivision: LAKE MUREX
County: Lee
Sale Type: For Sale
Ref #: 2025018603
Last Updated: Tuesday, 04 November 2025 05:32
Type of Home: Single Family
Listed by Michael Saunders & Company on Tuesday, 04 November 2025 [For Sale]

USA:
E-Mail: