5095 Joewood Drive $2,150,000
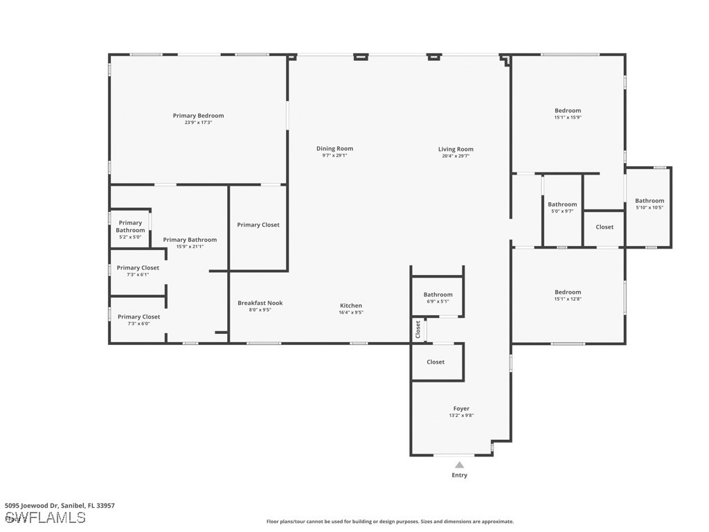
Welcome to 5095 Joewood Drive, a coastal retreat in the sought-after Gulf Ridge neighborhood, where island living reaches new heights. This elevated home offers the perfect sanctuary for a relaxed, luxurious lifestyle. Featuring a well-designed split floorplan with three bedrooms and three and a half bathrooms, this residence seamlessly blends comfort and style. The primary suite opens onto a spacious deck overlooking the inviting pool, providing a serene setting for ultimate relaxation. The open-concept layout makes this home ideal for entertaining, with ample space to gather and enjoy. Step outside and be enchanted by the lush mangroves framing your view of the Gulf of Mexico and Sanibel's world-famous sunsets. A beach path adjacent to the property offers direct access to one of the island's most stunning, shell-laden beaches—a true haven for beachcombers and shell collectors. Beyond its breathtaking surroundings and beach access, this home features all the modern amenities needed for a comfortable, carefree lifestyle. Experience the best of island living at 5095 Joewood Drive, where every day feels like a vacation.
General Amenities
Interior Amenities
Exterior Amenities
Security Amenities
Landscape Amenities
Community Amenities
Appliance Amenities
Accessibility Amenities
- Beds
- 3
- Baths
- 4.00
- Ft2
- 3,111
- Lot Acres
- 0.84
- Year Built
- 1982
- Heat
- Central,Electric,Zoned
- Roof
- Metal
Virtual Tour
5095 Joewood Drive
Sanibel, Florida 33957
United States
Sanibel, Florida 33957
United States
Subdivision: GULF RIDGE SUB
County: Lee
Sale Type: For Sale
Ref #: 224074381
Type of Home: Single Family
Listed by Pfeifer Realty Group LLC on Tuesday, 18 February 2025 [For Sale]
- Beds
- 3
- Baths
- 4.00
- Ft2
- 3,111
- Lot Acres
- 0.84
- Heat
- Central,Electric,Zoned
- Cooling
- CentralAir,CeilingFans,Electric,Zoned
- Roof
- Metal
- Year Built
- 1982
- Garage Size
- 2
- Frontage
- Yes
- Beds
- 3
- Baths
- 4.00
- Ft2
- 3,111
- Lot Acres
- 0.84
- Year Built
- 1982
- Heat
- Central,Electric,Zoned
- Roof
- Metal
Virtual Tour
5095 Joewood Drive
Sanibel, Florida 33957
United States
Sanibel, Florida 33957
United States
Subdivision: GULF RIDGE SUB
County: Lee
Sale Type: For Sale
Ref #: 224074381
Type of Home: Single Family
Listed by Pfeifer Realty Group LLC on Tuesday, 18 February 2025 [For Sale]